
近日,中共蕉城区委宣传部蔡氏民居及家庙(蔡威事迹展陈馆)修缮工程工程类采购项目中标信息发布,福建省鑫元建设工程有限公司中标。

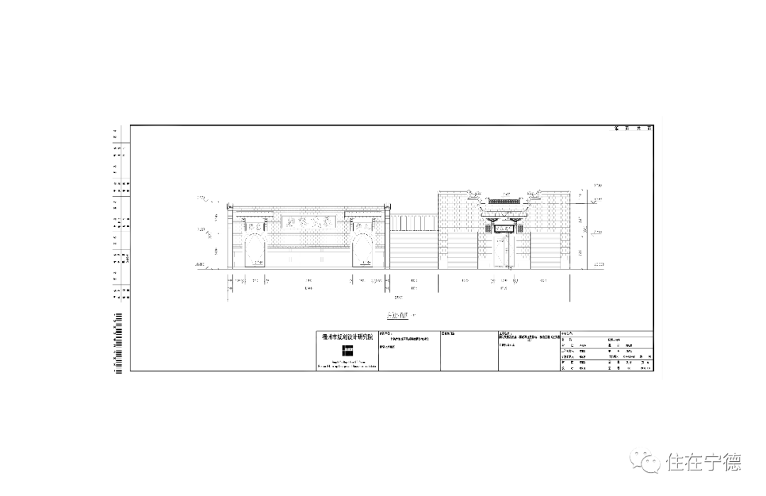
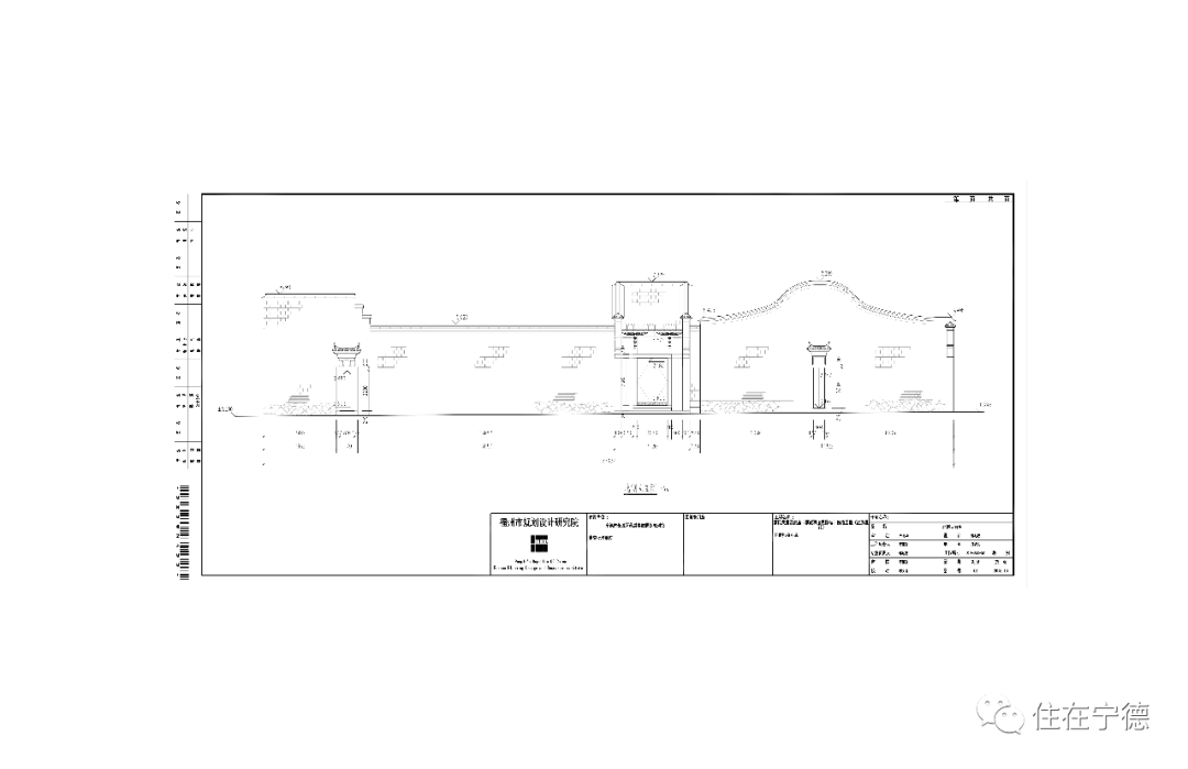
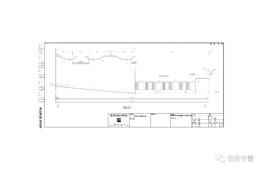
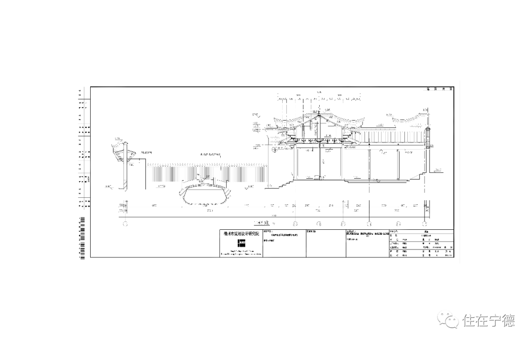
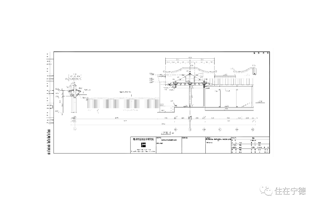
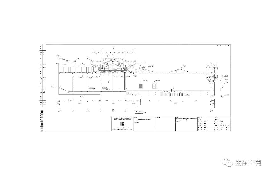
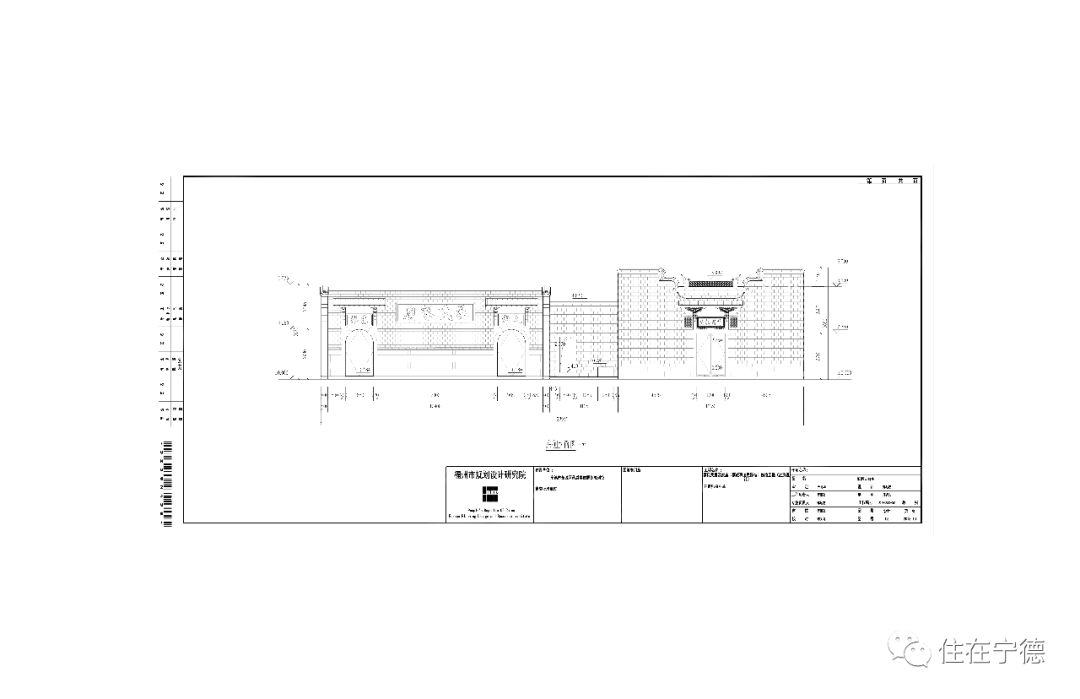
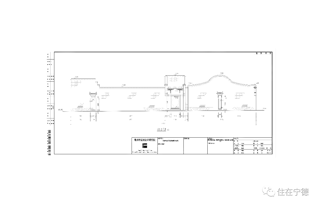
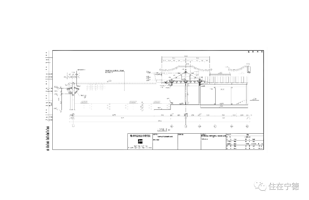
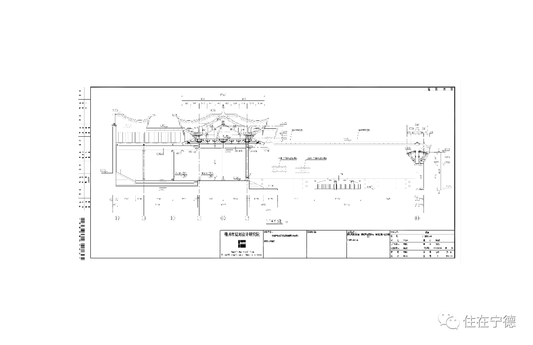
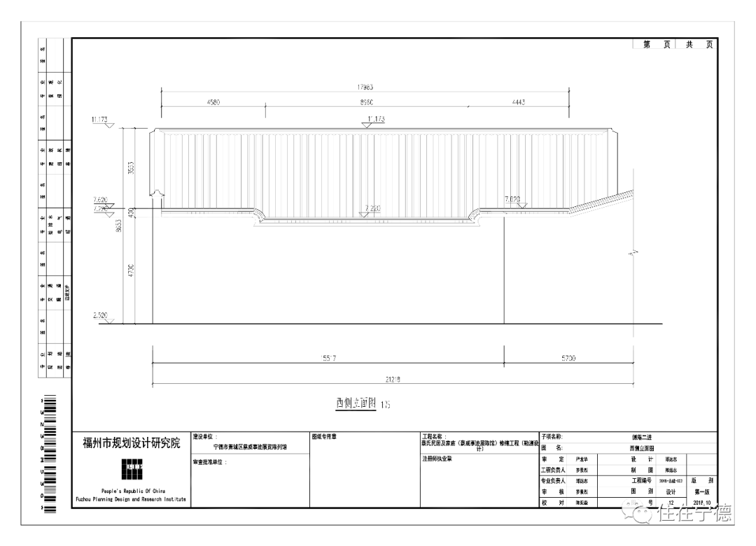
对古建筑有兴趣的一起来学习下蔡氏民居及家庙修缮工程第二稿。














































































































































































































































【关于我们】今日采访.com、天下吴氏网、至德传媒网隶属于泰伯文化传媒(重庆)有限公司独家运营的三网合一公益性网站,集官网、APP、自媒体、抖音、视频号、公众号同步传播的综合性融媒体平台。
在国家法律许可下,遵纪守法、守正创新、传递正能量,坚持正确的舆论导向,坚持客观、真实展播、记录生活,坚持正确的主观立场,以弘扬至德精神!传播优秀文化为主旋律!
渝ICP备 15011658号-3天下吴氏网
渝ICP备 15011658号-5至德传媒网
渝ICP备 15011658号-8今日采访.com
只要你是正能量的来稿,我们都欢迎!
联系人 吴蜀丰
电话 18883313913(微信同号)

责任编辑:上官慧慧
关于我们|今日采访人员公示(更新|
投稿须知|
联系我们|
版权所有 今日采访网 电话: 18883313913 | 电子邮件:wsf905080184@qq.com
023-62795070
媒体支持:中国报道网
合作媒体: 泰伯文化传媒(重庆)有限公司独家营运
常年法律顾问吴彭龄 执业证号码:13202199210937510 江苏仁勤律师事务所
地址:重庆市巴南区融汇大道7号1-13-10 |备案号:渝ICP备15011658号